户型图设计(一个户型会有多种设计方案,你喜欢哪个?)
户型图设计(一个户型会有多种设计方案,你喜欢哪个?)
一个户型到底能有多少种设计方案呢?莎士比亚曾说过,一千个读者就有一千个哈姆雷特。同一个户型,不同的家庭居住,就会有不同的设计方案。户型的规划一定是根据家庭的居住人口、居住需求来的,今天就给大家分享一个三室两厅户型的三种不同设计方案。
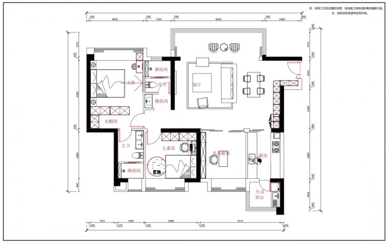
原始户型解读

原始户型图
原始户型是130㎡三室两厅两卫的房子,主卧带有独立卫生间。
✔优点:原始户型方正,浪费空间较少,采光充足,视野开阔。
✘缺点:厨房有些许狭长,餐厅位置相对客厅有些许偏移,客卫干湿不分明,主卫洗漱台使用不够充分。
方案1.0
三居改两居,三口之家的品质生活

装修风格建议:现代、轻奢、极简
改造方案解读:
① 三口之家,不需要三个卧室,因此把其中一个小卧室拆掉隔墙,扩充家庭核心区域的空间,打造出LDK客餐厨一体式设计,动静分区明确,家居动线流畅。
② 打掉厨房的隔墙,封闭的II型厨房改造成L型开放式厨房,生活阳台打造成洗衣房,解放南阳台,南阳台打造休闲区,并入整个客厅区。
③ 全屋收纳设计,每个功能区都有独立收纳空间,玄关打造入户鞋柜,客厅的收纳柜以及餐边柜,主卧的小型步入式衣帽间,再多东西都能收得下。
方案2.0
2+1设计,三口之家的功能空间

装修风格建议:简约、现代、北欧
设计方案解读:
① 三口之家,屋主偶尔需要在家办公或阅读,因此需要一个独立空间,原始户型未做大的改动,拆掉小卧室的隔墙,以玻璃推拉门做隔断,打造半开放式多功能空间,不用的时候可以打开,保证客厅的采光和通透。
② 客厅餐厅空间比较小,客厅选用一字型沙发,搭配单人沙发或沙发凳,打造互动型客厅。
③ 公共区域面积较小,从入户开始沿墙面,做整体的收纳柜,增加全屋收纳空间。
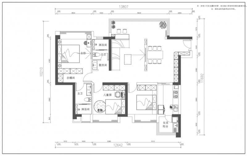
方案3.0
三代同住,布局紧凑也要住得舒服

装修风格建议:简约、北欧、日式
设计方案解读:
① 三代同住,一孩家庭,需要三个卧室,原始户型未做大的改动,主要改造点在家居动线与细节设计,因为有生活阳台,南阳台不需要承担洗衣功能,因此依托沙发做小吧台,休闲有情调。
② 厨房狭窄,面积较小,平开门改推拉门,开关门不占用空间。
③ 居住人口较多,餐厅需要六人位,原始客餐区布置,客餐位置有偏移,因此改变沙发朝向,打造半隔断矮墙做电视背景墙,同时起到分隔空间的作用。
④ 原始客卫未做干湿分离,将卫生间门南移,打造干湿分离卫浴间,洗漱和如厕互相独立,更适合多人家庭。
标签:
180
船帆的作用(船桨和船帆的作用) 大家好,近期很多朋友对于 船帆的作用 产不是很理解。然后还有一些网友想弄清楚船桨和船帆的作用,(www)已经为你找到了相关问题的答案,接下...
58
爱情里的七宗罪是什么意思?七宗罪是什么意思解释 爱情里的七宗罪是什么意思?1、爱情是一场冒险,赢了,厮守一生;输了,那个比朋友更近的人,连朋友都不是。我不怕千万人阻...
120
和女生聊天的开场白怎么说,才更容易被回复? 找女生聊天,好不容易鼓起勇气去打招呼,却发现消息总是如同石沉大海般的收不到回复?这其实就是你的开场白出现了问题,那和女生...
190
对你动手的男人还能不能要(对于好动手的男人怎么处理) 感谢邀请!事因案例:“在一次争吵中,我给了他一巴掌,之后他会经常提到我打他的事情,事后也有给他道歉。完了,在另一次...
84
车厘子能放多久,可存放一周(车厘子核有毒不能吃) 车厘子大家应该吃过,它与樱桃相似,是一种美味又营养的水果。因为昂贵,车厘子买回来后建议快点吃完,否则放坏了就不好了...
177
周生生相融系列好不好 周生生融合系列 相拥相融 定义甜蜜 爱,让两个人相拥相融。从彼此独立到心意相通,周生生Promessa相融系列全新戒指以你中有我、我中有你的双色融合纹理,刻...
162
中国不敢公开发现龙 神话传说可以现实中绝无可能出现 自古以来龙都是中国神话故事中才会出现的神物,大家可能在看电视、电影、小说、漫画的时候看到过关于龙的传说,但你要说...
94
孕期老公出轨怎么办(老公孕期出轨要离婚) 文|文儿 小萱是大学时认识了现在的老公,大学相恋,毕业后选在同座城市上班,事业稳定就买了房子扯了证正式结为夫妻。婚后半年小萱...
110
西洋参过期能吃吗?西洋参适合什么人吃 西洋参,是一种草本植物,其功效与人参相当。那么,西洋参过期能吃吗?西洋参适合什么人吃? 西洋参过期能吃吗 西洋参保健品成品,过了...
75
乌苏啤酒为什么叫夺命 夺命的意思其实就是销魂而已 啤酒虽然说是一种酒水,其实也可以定义成是一种的饮料的,因为在炎热的夏季这个是一个的不容错过的饮品,其实如今越来越多...
51
秃顶能植发吗 中年秃顶是什么原因 秃顶了还能再长出头发吗 有一种痛苦叫做中年男人的脱发,男人总想挽救头顶的那几根稻草,可是往往事与愿违,总是不可逆的出现脱发苦恼,越是...
193
蛇冬眠的方式是什么样的(蛇冬眠的方式有哪些) 蛇冬眠的时候,往往几十条或成百条聚集在一起,躲在干燥的洞穴里、树洞里等,整个冬眠期,蛇都是不吃不喝的,主要靠体内积累的...
145
玉石的密度范围值是多少是真的?玉石密度多少为好玉? 玉的密度是多少要看玉的种类,不同种类的玉,其密度也是不一样的,那么玉石的密度范围值是多少是真的?玉石密度多少为好...
65
辛弃疾简介和资料(辛弃疾的生平和创作) 辛弃疾(1140——1207年),字幼安,号稼轩,山东济南人。他是个文武兼备的爱国词人。和陆游生活在同一个时代。他二十一岁时,在金朝统治...
190
什么减肥运动效果最好(怎么运动减肥效果快又好) 今年夏天有一则新闻:杭州一女子为了减肥,连续吃了一年多的减肥药,患上结肠黑变病。这种病会让人便秘、腹痛,目前还没有特别...
169
情感小知识:挽回死心老公的最佳时期 在情感世界里每个人或多或少都遇到一些困扰或者难题,近来不少朋友提到关于挽回死心老公的最佳时期这方面的问题,小编为此整理了一些关于...
52
女人和别人吵架 1、没有人可以跟时间抗衡,没有一种千疮百孔的爱情可以敌得过工夫。 2、真正的婚姻不是生活一辈子不 吵架 ,而是 吵架 了还能生活一辈子。 3、如果分别的恋人还能...
73
了解这8种狗狗肢体语言,或许能让你与狗狗更加顺畅地交流 狗狗跟我们的语言不一样,有时候狗狗做出一些奇怪的行为时,我们真的很想知道,它们到底在想什么呢?其实狗狗传递的...
116
win7显示桌面(win7显示桌面按钮) 本篇文章给大家谈谈win7显示桌面,以及win7显示桌面按钮对应的知识点,希望对各位有所帮助,不要忘了收藏本站喔。 win7系统显示桌面的快捷键是什么...
123
11cm坐上去感觉是15怎么样的 11cm坐上去感觉是什么 每个男人都有不同的个体差异。有些较高,有些较小。那么坐在一个11厘米高的人身上,感觉自己像一个15厘米高的人,感觉如何呢?想...