三款现代农村一层平房图片,各有特色,随便盖一栋村里人都羡慕
三款现代农村一层平房图片,各有特色,随便盖一栋村里人都羡慕
现在在农村二三层的别墅非常常见,反而是平房,却越来越少了。其实如果家中人口不多的话,或者只是建一个养老房,根本没有必要去盖二三层的别墅,随便花个十来万盖一个彭芳是最好的,今天小编就给大家带来了三款现代农村一层平房图片,如果有你喜欢的,可千万要抓紧时间收藏图纸盖房子啦。
户型一:新款现代一层别墅设计效果图,农村自建房平房推荐户型
占地面积:13m*9.3m,129.36平方米;
建筑层高:一层;
建筑高度:6.193米(含屋顶);
设计功能:
一层户型:客厅、厨房、餐厅、卧室X3、卧室(带卫生间);
图纸介绍:本户型占地130平米左右,外观时尚漂亮,户型经典实用,欧式风格非常经典耐看;室内有四室两厅一厨两卫,客厅主卧有飘窗,户型通透,满足大多数农村生活居住需求。


现代一层别墅设计图展示
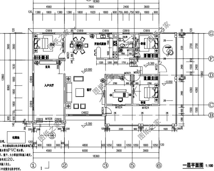
户型二:现代田园风格一层别墅设计图,带阁楼
占地面积:18.36m*12.86m,220平方米左右;
建筑层高:一层半;
建筑高度:9.1米(含屋顶);
设计功能:
一层户型:入户大厅、玄关、客厅、餐厅、厨房、卧室x3、书房、卫生间;
阁楼户型:卧室、卫生间;
图纸介绍:本户型带阁楼设计,外观时尚,沉稳大气;室内布局也很实用,造价经济,施工简单,室内空间非常大注重生活品质,居住其中会有非常舒适的居家体验。




田园风格一层别墅效果图展示
户型三:现代一层别墅房屋设计图,主体造价15万左右
占地面积:14.0m*13.5m,建筑面积180平左右;
建筑层高:一层;
建筑高度:6.50米(含屋顶);
设计功能:
一层户型设计:客厅、餐厅、厨房、主卧(带卫生间)、卧室x2、书房、衣帽间、卫生间;
图纸介绍:本户型含外观图片,内部布局十分合理,空间利用率高,采光极佳;外观看上去非常现代,时尚感很强。




现代一层别墅外观图展示
以上就是小编这次为大家带来的别墅设计图,喜欢哪一款下方留言告诉我。
标签:
117
南京条约 《南京条约》是中国近代史上第一个不平等条约,它标志着中国逐步沦为半殖民地半封建社会。以下是《南京条约》的主要内容和影响: 1. 签订背景:1842年8月29日,清朝政府...
98
杰西·J演唱会现场崩溃、情绪激动,倾诉流产之痛 近日,杰西·J(Jessie J)在一场原声演唱会上突然崩溃,向她的粉丝倾诉了她最近流产的消息。杰西在现场情绪非常激动,场面令人心...
177
佳通轮胎优缺点分析 作为全球知名轮胎制造商,佳通(Giti)自1993年进入中国市场以来,凭借安全技术和全球化布局,成为经济型轮胎市场的代表品牌之一。结合用户提供的搜索结果,...
106
华为小米体脂秤只能当体重计?乐福体脂秤App送你一个减肥军团! 当代年轻人的减肥迷惑行为,终于被这款神器终结了! 在这个追求健康与美的时代,减肥似乎成了每个人生活中的“...
112
好看度报表!6部印度脑洞科幻神片盘点 近年来印度电影不断走入人们的视野,印度因其监管宽松从而很多带有强烈讽刺意义的电影深受好评,比如《三傻大闹宝莱坞》《PK》等电影。今...
137
都知道拿破仑说中国是睡狮,其实后面还有一句话,已逐渐实现 拿破仑·波拿巴曾说过一句著名的话:“中国是一只沉睡的狮子,当他醒来,将会震撼世界。”然而,很少有人知道这句...
95
白话《太平广记》卷四十﹡神仙四十﹡章仇兼琼(出《逸史》) 章仇(复姓)兼琼尚书镇守西川的时候,经常派他的手下人到处去察访道家术士。有一个卖酒的人,他的酒好,胜过他的...
189
914航班事件的真相,失踪35年重现世间,时空隧道真的存在? 1990年9月9日,南美洲委内瑞拉一家机场上空突然出现一架之前雷达根本没有显示的客机,经过机场人员观察,竟然是一部早已经被...
150
#河源头条#之了解河源 河源,又称“槎城”,广东省地级市,位于广东省东北部、东江中上游,东接梅州市、汕尾市,南邻惠州市,西连韶关市,北与江西省赣州市交界, [1] 全市总面...
177
诸城恐龙国家地质公园——孩子超喜欢的旅游地点 我家宝宝和许多男孩子一样,是一个小小恐龙迷,从小喜欢各种关于恐龙的书籍,动画,玩具。一直渴望能够看到真正的恐龙化石。从...
139
周瑜的二儿子周胤:被贬庐陵的命运与罗贯中的隐秘恩怨 在历史的长河中,有多少英雄豪杰因缘分的牵引,走上了不同的命运之路。今天,我们要讲述的是一个鲜为人知的故事,关于周...
165
云南常见野生菌介绍 以下是云南常见的食用野生菌介绍: 鸡枞菌 - 外形特征:菌盖刚出土时呈圆锥形,开展后中央凸起,表面黄褐色或黑褐色,边缘呈放射状裂开,菌褶白色,菌肉白...
103
一分钟烧好美味的紫菜汤 大家好,我是清风晓月99,一个被教育事业耽误的“厨师”。 我们平时在外面吃饭时经常会喝到免费的紫菜蛋花汤,但往往是淡如水,没什么味道。紫菜汤就不...
153
玩转北京奥莱全攻略,逛街玩耍好去处,看看哪一个才是你的最爱 北京目前大大小小的奥莱应该少说也要十几家了吧,今天给大家盘点推荐一下几家,看看哪个更适合你. 1、燕莎奥莱:...
134
热带雨林精灵:松鼠猴的神奇世界 松鼠猴,学名为Saimiri,是一种小型猴类动物,也被称为小型恒河猴。它们属于灵长目(Primates)中的一类,是新世界猴的一种,主要分布在南美洲的热...
115
青岛三利智能动力有限公司:智启动力新章 匠铸民族品牌 大众网记者 尚超 尹璐瑶 青岛报道 在第九个中国品牌日,经开区青岛三利智能动力有限公司亮相。作为青岛三利集团核心力量...
194
搞趣网:王者荣耀李白千年之狐实战效果图 王者荣耀李白千年之狐实战效果图。详细展示了王者荣耀李白千年之狐皮肤在实战中施放技能的效果,希望能够帮到正在玩王者荣耀的玩家朋...
65
太原地名:73、迎泽大街 迎泽大街——因太原城原南有“迎泽门”得名,大街是解放后,在迎泽门(即大南门)外,护城河以南的一条不足两米宽的土马路开拓建成,该街地处迎泽门前...
132
李子柒家在绵阳哪儿?这里有李子柒的全部档案! 人生苦短,无梦难活,唯有美食和美人,不可辜负。来自 四川绵阳平武 的姑娘李子柒,仿佛从古代穿越而来,总是一袭古装,静静地...
169
天猫:双11首次大规模推出官方直降,新增“全网低价”闪电标识 天猫宣布,今年双十一期间将首次大规模推出官方直降活动,为消费者提供更为优惠的购物体验。此外,天猫还将在新...